Details
Überbauung Punkt 5 - Mels (Bankengeprüft)
Grunddaten
Adresse
Gerbistrasse
8887 Mels
Etage
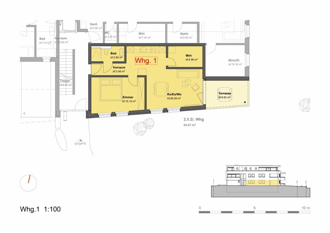
Erdgeschoss
Badezimmer
1
Zimmer
2.5
Bruttowohnfläche
54 m2
Balkonfläche
6 m2
Kellerfläche
8 m2
Baujahr
2026
Eigenschaften
Erstbezug
Balkon
Kinderfreundlich
Lift
Ruhige Lage
Tumbler
Waschmaschine
Angebot
Kaufpreis
CHF 420'000.00
Verfügbar
auf Anfrage
Beschreibung
Zuhause wohlfühlen!
Am Fusse des Melser Vorderberges entsteht im beliebten Quartier Gerbi mit dem Projekt Punkt5 ein modernes Mehrfamilienhaus an sehr ansprechender Lage. Das in den letzten Jahren gewachsene Quartier hat sich zu einer überaus begehrten Wohngegend entwickelt. Obwohl sich das Mehrfamilienhaus in zentrumsnähe befindet, lässt es sich hier in Ruhe leben.
Mit grosser Begeisterung und viel Liebe zum Detail wurde dieses Projekt über Jahre geplant.
Es entsteht ein modernes Mehrfamilienhaus an der Gerbistrasse 9 mit insgesamt lediglich 6 Wohneinheiten. Zudem stehen 8 Carports sowie 2 Aussenparkplätze für die Parkierung zur Verfügung.
Beim Ausbau der Wohnungen wird viel Wert auf Ästhetik und Funktionalität gelegt. Durchdachte Grundrisse, lichtdurchflutete Wohnräume, edler Parkettboden mit Landhausdielen, moderne offene Küchen sowie ein eigener Waschturm in der Wohnung sorgen für ein optimales Wohngefühl. Auch dank der stimmigen Umgebungsbepflanzung fügt sich das Gebäude perfekt in das bestehende Quartier ein. Die warme Jahreszeit lädt dazu ein, die Sonnenstunden auf dem Sitzplatz, dem Wintergarten oder der Terrasse zu geniessen.
Der Baustart erfolgt voraussichtlich im Frühjahr 2025. Die Wohnungen werden voraussichtlich im Herbst 2026 bezugsbereit sein.
Weitere Informationen zu den verfügbaren Wohnungen können Sie der Verkaufsdokumentation entnehmen. Senden Sie uns eine Anfrage via Kontaktformular oder rufen Sie uns an, gerne stellen wir Ihnen die Verkaufsdokumentation zu.
Lassen Sie sich von der Überbauung genauso begeistern wie wir!
